Altan Radar est une agence franco-tchèque née de l’association de Vilém Kořený et Alice Lapierre.
Chacun de nos projets s’appuie sur une lecture précise du contexte et de l’existant : architecture, paysage, ville. Nous cherchons à révéler le potentiel du déjà là et à l’enrichir, et sommes convaincus de l’importance de réemployer, adapter et prolonger la vie des structures.
Nous pensons que l’architecture est créatrice d’urbanité, et nous nous intéressons tant à la conception des intérieurs et à la relation entre ces espaces, qu’à l’effet générateur de l’architecture sur la ville.
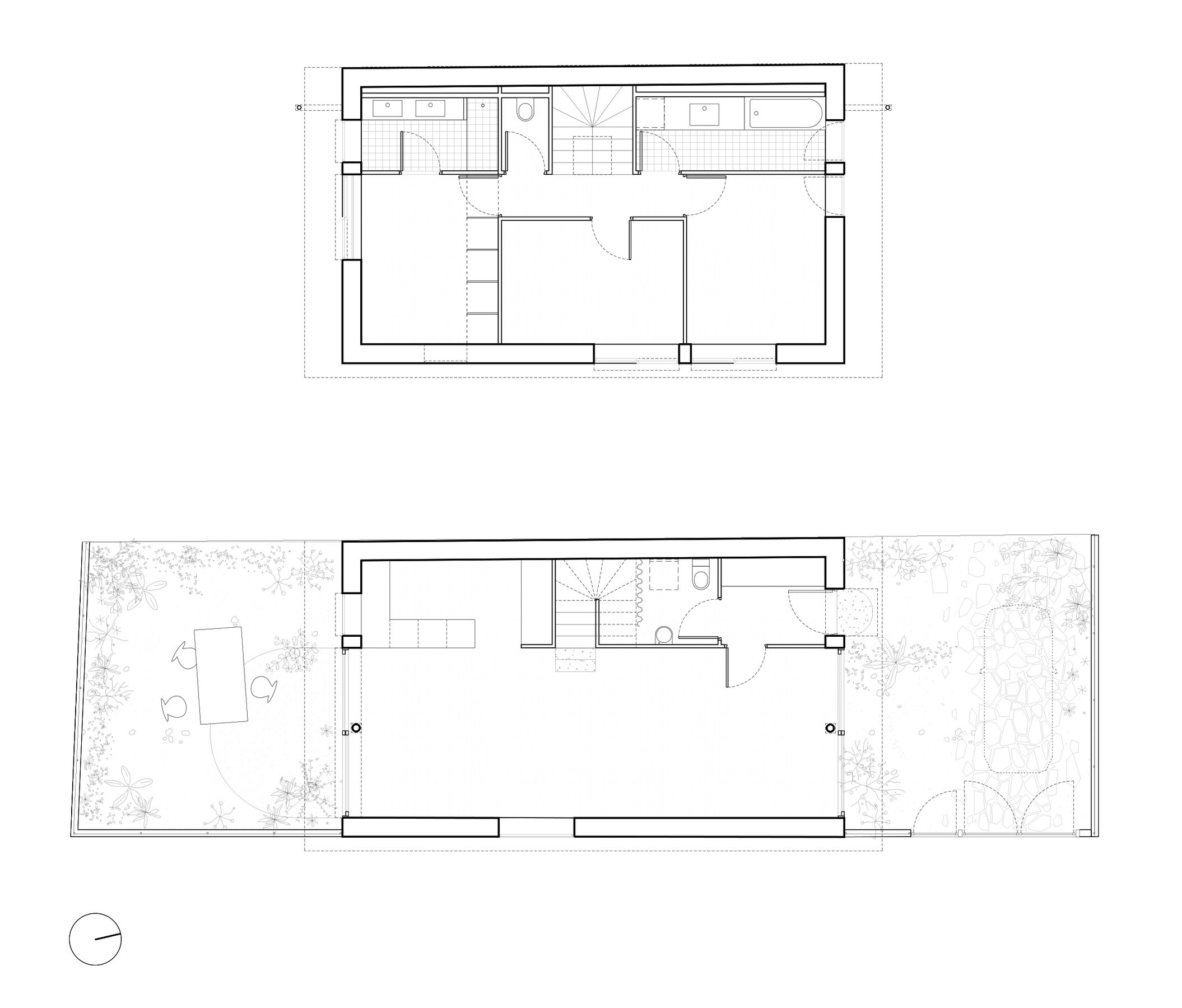
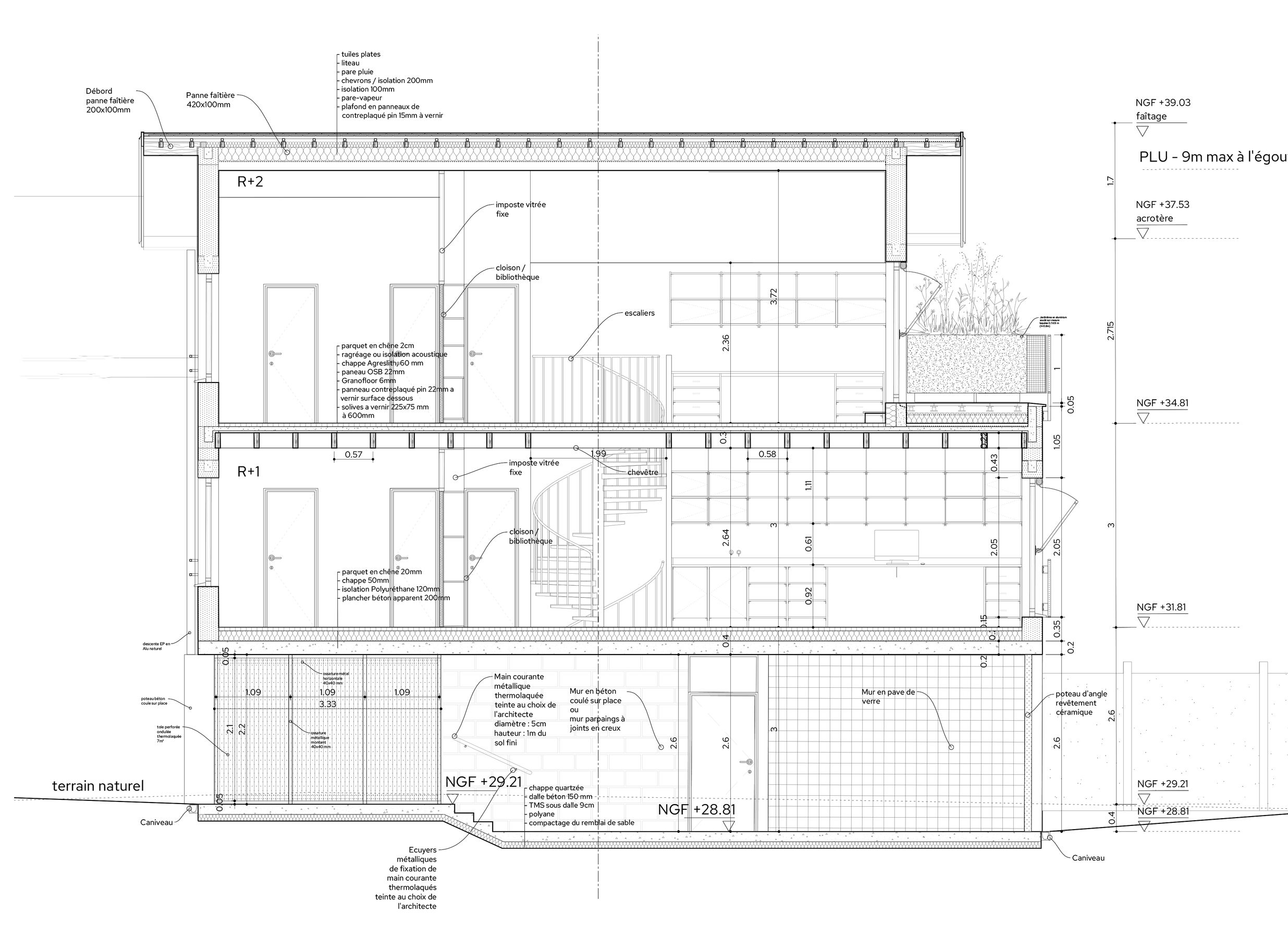
La construction neuve est envisagée dans une logique d’économie de moyens, avec une structure sobre, l’emploi des bons matériaux au bon endroit, la conception d’espaces simples et lisibles, et une anticipation du potentiel de transformation des espaces.
Nous assurons une maîtrise d’œuvre complète sur des projets de réhabilitation, restructuration, transformation ou construction neuve.
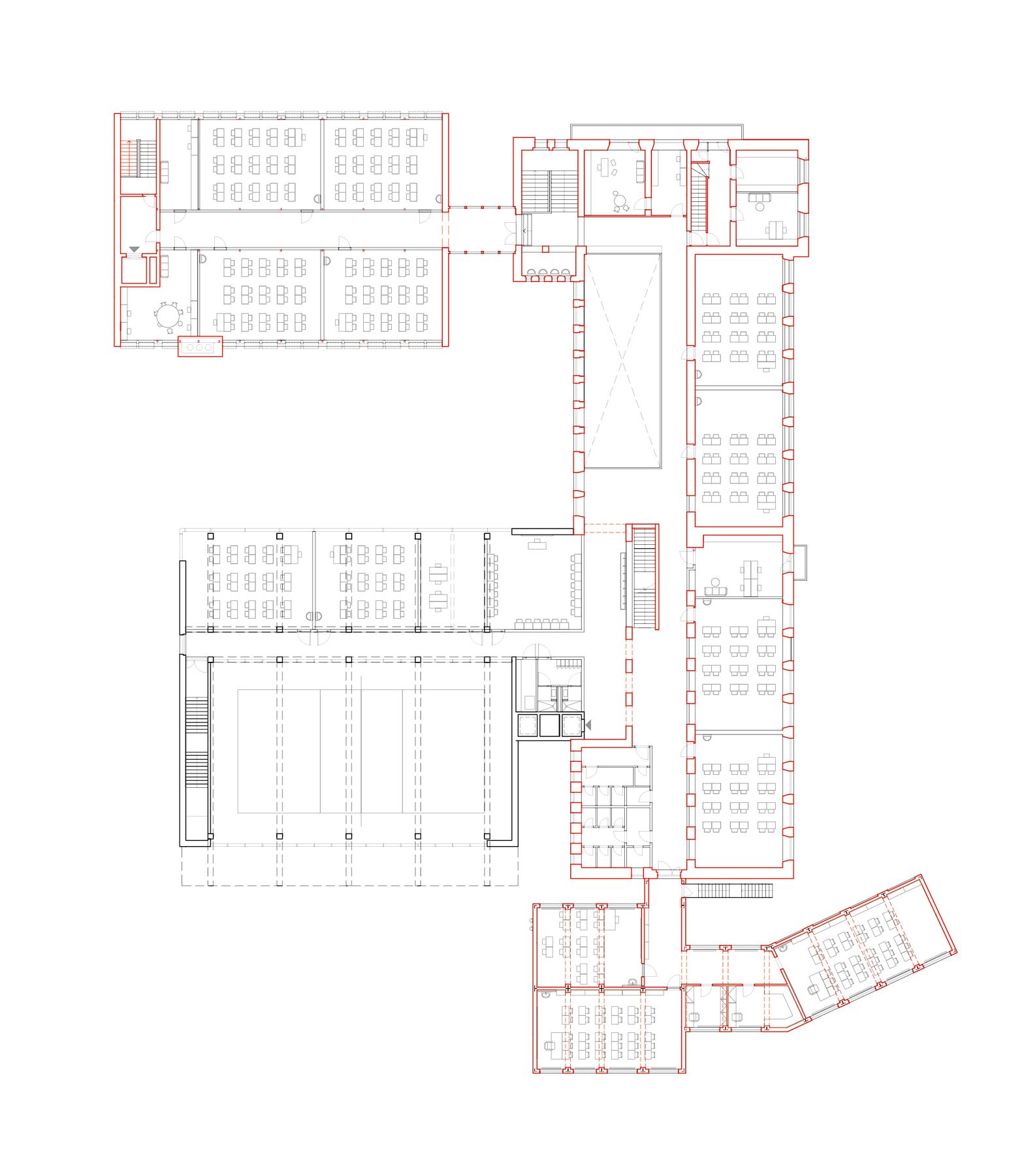
Notre pratique s’appuie sur une expérience solide de la mixité programmatique au sein d'un même bâtiment, mais aussi de la variété des programmes.
Nous transformons ou concevons des bâtiments adaptés à des contextes urbains complexes, pour des maîtres d’ouvrage tant publics que privés.
Champs d’exploration
Transformation, Mixité programmatique, Matériaux biosourcés ou géosourcés, Flexibilité, Réemploi
Altan Radar
61 rue de Lyon, 75012 Paris
@altan_radar
office@altan-radar.com
www.altan-radar.com
FR Ordre des architectes Île-de-France n°S24880
CZ Ordre des architectes tchèques CKA n° 05 668